Znajdź mieszkanie

Comfort City Szmaragd – Mieszkanie 87

Poznaj szczegóły

Ustawne, dwustronne i przestronne mieszkanie z trzema widnymi pokojami oraz dwoma dużymi balkonami. Idealne dla rodzin, ale także dla singla potrzebującego oddzielnej przestrzeni pod gabinet lub też inwestycyjnie. Duży salon dzienny połączony z widnym aneksem kuchennym, daje możliwość indywidualnej aranżacji przestrzeni. 
Dzięki temu, że mieszkanie jest dwustronne, w upalne dni można wypocząć na balkonie od strony północnej, a w te chłodniejsze dni korzystać ze słońca od strony południowej. 

Inwestycja: Comfort City Szmaragd

Lokalizacja: Warszawa, ul. Dionizosa 4

Numer: 87
Nazwa: B - 87
Budynek: B
Metraż: 49.00m2
Piętro: 8
Pokoje: 3
Strona świata: NS
Balkon: 8.40 m²
Status: Odebrano
Pobierz PROSPEKT INFORMACYJNY

Inne koszty

  • koszt aktu notarialnego uzależniony jest od wybranej kancelarii notarialnej
  • Do ceny mieszkania brutto należy doliczyć obowiązkowy zakup miejsca parkingowego

Historia cen

Miejsca parkingowe

Ostatnia aktualizacja danych: 15.12.2025 11:34

  ← Powrót do listy mieszkań

 

 

Położenie

N SCHEMAT - MIESZKANIA Warszawa, ul. Dionizosa 4 PIĘTRO 8 81 LOKAL NR 82 LOKAL NR 83 LOKAL NR 84 LOKAL NR 85 LOKAL NR 158 LOKAL NR 157 LOKAL NR 156 LOKAL NR 155 LOKAL NR 154 LOKAL NR 152 LOKAL NR 151 LOKAL NR kom. kom. kom. 150 LOKAL NR 29 LOKAL NR 30 LOKAL NR 31 LOKAL NR 86 LOKAL NR 87 LOKAL NR 153 LOKAL NR
Podobne oferty

Dostępne

Comfort City Szmaragd

Numer:
18
Metraż:
55m2
Piętro:
5
Pokoje:
3
Rodzaj kuchni:
Aneks
Zobacz więcej Zapytaj
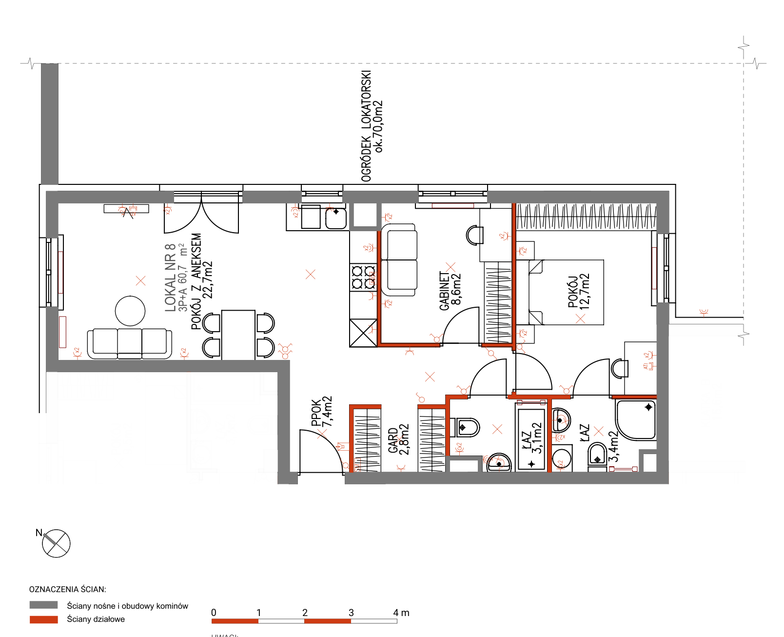
Dostępne
Dostępne w programie RKM!

Comfort City Koral

Numer:
1
Metraż:
58m2
Piętro:
1
Pokoje:
3
Rodzaj kuchni:
Zamknięta
Zobacz więcej Zapytaj
Dostępne
Dostępne w programie RKM!

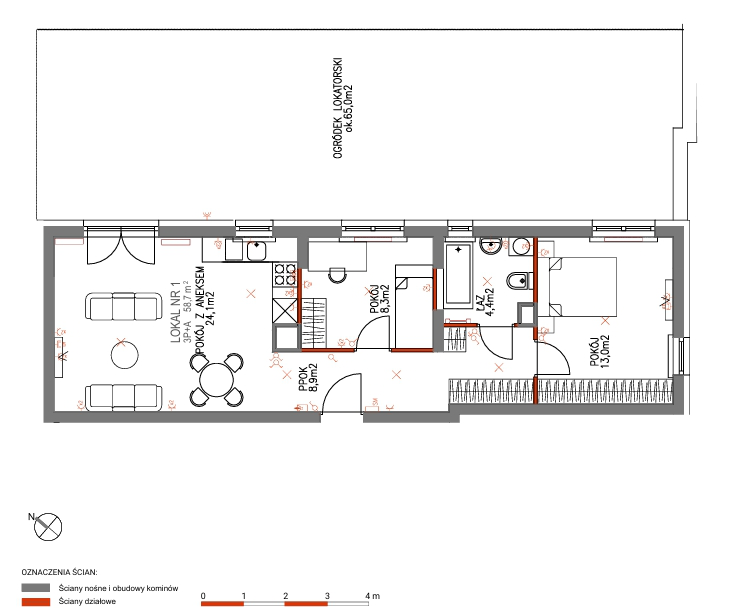
Comfort City Koral

Numer:
8
Metraż:
60m2
Piętro:
1
Pokoje:
3
Rodzaj kuchni:
Zamknięta
Zobacz więcej Zapytaj

Zadaj pytanie

    Wyrażam zgodę:

    [*] zgody konieczne, bez przynajmniej jednej z nich nie jest możliwe wysłanie formularza

    Administratorem danych jest BARC WARSZAWA S.A. (pokaż więcej)

    Szybki kontakt

    icon
    +48 22 487 82 24
    icon
    +48 22 487 82 21
    icon
    Biuro Sprzedaży przy Inwestycji
    ul. Modlińska 309, Warszawa
    Kup mieszkanie on-line! Formularz kontaktowy Czat